À Vendre

1 575 000 $

3830 - 3832 Rue De La Peltrie , Montréal (Côte-des-Neiges/Notre-Dame-de-Grâce), QC H3S1V3

3 Chambres à coucher 3 Salles de bain

Remarques

Occasion exceptionnelle au coeur de Côte-des-Neiges. Ce duplex bien entretenu avec bachelor, offrant une double occupation, se distingue par sa construction solide, ses finitions de qualité et ses espaces de vie généreux dans les trois unités. Le rez-de-chaussée bénéficie d'un accès direct à un beau jardin privé, tandis que l'unité à l'étage profite de deux balcons, ajoutant des espaces de vie extérieurs appréciables.La propriété comprend deux garages, un stationnement supplémentaire dans l'allée, ainsi qu'un sous-sol fini, offrant à la fois confort et fonctionnalité. De nombreuses mises à jour ont été effectuées au fil des ans. Idéalement si

Idéalement situé au coeur de Côte-des-Neiges, ce superbe duplex avec bachelor offre un espace de vie généreux, un confort remarquable et une flexibilité exceptionnelle grâce à sa triple occupation. Parfait pour un propriétaire occupant ou un investisseur, chaque unité bénéficie d'une belle luminosité et de pièces bien proportionnées.
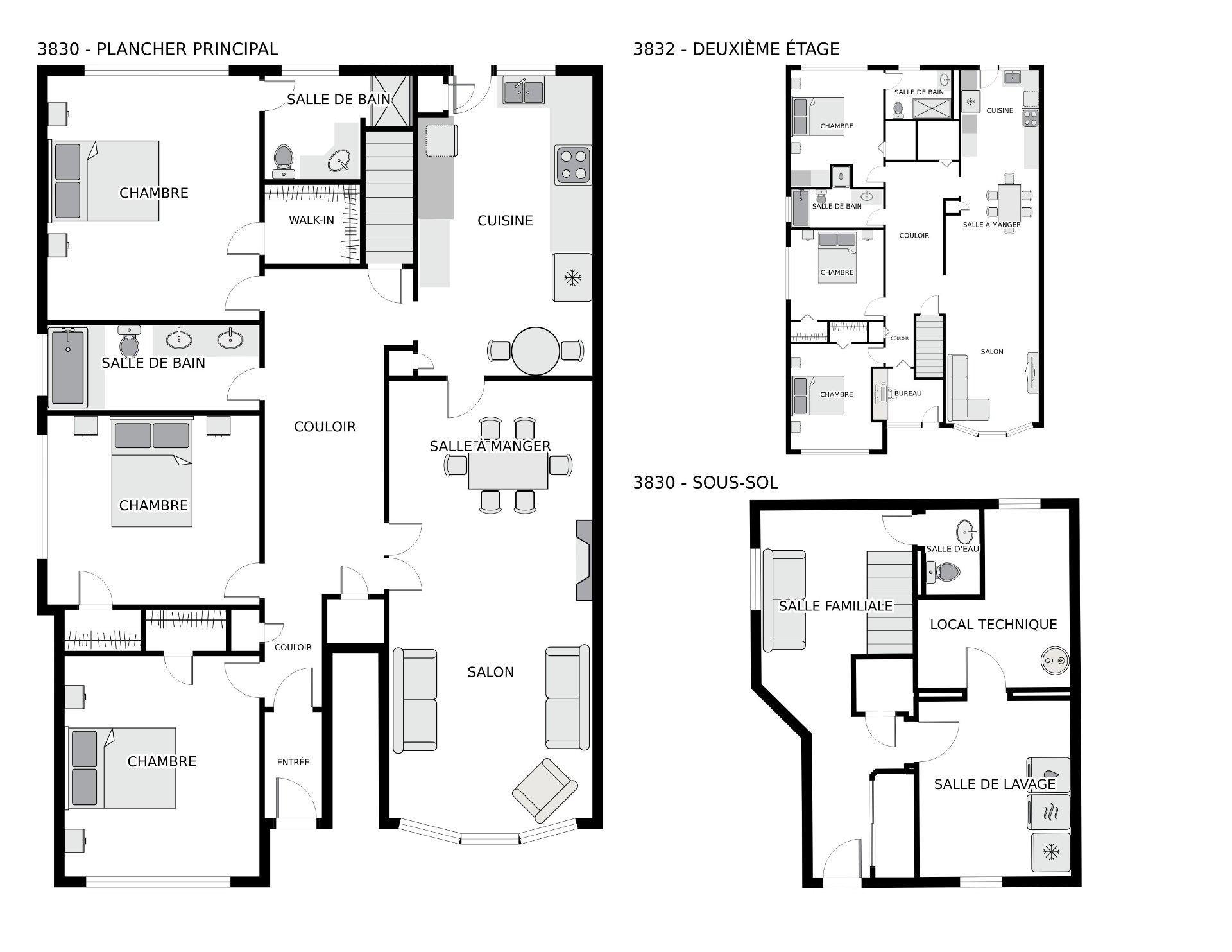
Rez-de-chaussée (3830)
Un espace accueillant comprenant 3 chambres, 2 salles de bain complètes et une salle d'eau, un vaste salon et salle à manger, une cuisine fonctionnelle avec coin dinette, ainsi qu'une salle familiale au sous-sol aménagé et une buanderie. Accès direct à un magnifique jardin privé. Deux garages et stationnement extérieur inclus.
2e étage (3832)
Une unité spacieuse offrant 3 chambres plus 1 bureau , 2 salles de bain, un grand salon et salle à manger, une cuisine avec coin repas et deux balcons offrant des espaces extérieurs agréables.
Bachelor (3830A)
Une unité pratique comprenant une chambre, une cuisine et une salle de bain -- idéale pour des revenus supplémentaires ou pour accueillir un proche.
Située à distance de marche de l'Hôpital général juif, du CHU Sainte-Justine, de l'Université de Montréal, du Collège Brébeuf, des transports en commun, des parcs et de toutes les commodités, cette propriété représente un parfait équilibre entre confort, emplacement stratégique et potentiel d'investissement.
Une opportunité rare dans l'un des quartiers les plus recherchés de Montréal.

Inclusions : 

INCLUSIONS -- Included in the sale are the following items: 3830 Air conditioning in the master bedroom and living room, stove & oven,1 electric garage door opener and 1 remote, closet in primary bedroom , cabanon, alarm system, basement in the bachelor sofa bed, fridge, stove, washer & dryer . 3832 Permanent light fixtures with fan in the 2 bedrooms, closet in primary bedroom.

Exclusions : 

3830 Tous les rideaux et tringles, stores, tous les luminaires fixes, armoires de rangement du garage (sauf l'armoire en bois) 3832 Tous les rideaux et tringles, stores, luminaire fixe de la chambre principale, du salon, lave-vaisselle et tous les effets personnels

Résumé de la propriété

  • Voisinage : Côte-des-Neiges
  • Évaluation du terrain : 404 100,00 $
  • Évaluation de l'immeuble : 826 000,00 $
  • Évaluation totale : 1 230 100,00 $
  • Année d'évaluation : 2025
  • Taxes municipales : 7 839,00 $
  • Taxe scolaire : 1 015,00 $
  • Taxes annuelles totales : 8 854,00 $ (2025)
  • Largeur du terrain en façade : 11.14 Mètre
  • Profondeur du terrain : 32.61 Mètre
  • Dimensions du terrain : 369.0 Mètres carrés
  • Largeur du bâtiment 10.06 Mètre
  • Profondeur du bâtiment 15.27 Mètre
  • Nbre d'espaces de stationnement : 4
  • Bâti en : 1954
  • Chambres : 3
  • Salle(s) de bains (complète(s)) : 3
  • Zonage : RESI

Caractéristiques du bâtiment :

  • Allée:
    Asphalte
  • Mode de chauffage:
    Eau chaude , Plinthes électriques
  • Approvisionnement en eau:
    Municipalité
  • Énergie pour le chauffage:
    Électricité , Mazout
  • Équipement/Services:
    Thermopompe murale
  • Fenestration:
    Bois , PVC
  • Fondation:
    Béton coulé
  • Garage:
    Intégré
  • Occupation:
    Double
  • Proximité:
    Autoroute , Cégep , Garderie/CPE , Hôpital , Métro , Parc , Piste cyclable , École primaire , École secondaire , Ski de fond , Transport en commun , Université
  • Revêtement:
    Brique , Pierre
  • Sous-sol:
    Entrée extérieure , Totalement aménagé
  • Stationnement:
    Allée , Garage
  • Système d'égouts:
    Municipalité
  • Terrain:
    Clôturé , Paysager
  • Type de fenestration:
    Coulissante , Manivelle (battant)
  • Revêtement de la toiture:
    Bitume et gravier

Pièces

  • Salon:
    Niveau : Rez-de-chaussée 3.81 m x 5.87 m
    Plancher : Bois
  • Salle à dîner:
    Niveau : Rez-de-chaussée 3.81 m x 2.64 m
    Plancher : Bois
  • Cuisine:
    Niveau : Rez-de-chaussée 3.28 m x 5.61 m
    Plancher : Céramique
    Coin repas
  • Chambre principale:
    Niveau : Rez-de-chaussée 3.99 m x 4.57 m
    Plancher : Bois
    walk-in GDR
  • Salle de bains:
    Niveau : Rez-de-chaussée 2.77 m x 1.96 m
    Plancher : Céramique
    en suite
  • Salle de bains:
    Niveau : Rez-de-chaussée 3.96 m x 1.60 m
    Plancher : Céramique
  • Chambre:
    Niveau : Rez-de-chaussée 3.96 m x 3.35 m
    Plancher : Bois
  • Chambre:
    Niveau : Rez-de-chaussée 3.66 m x 4.14 m
    Plancher : Bois
  • Salle de lavage:
    Niveau : Sous-sol 2.92 m x 3.38 m
    Plancher : Céramique
  • Salle d'eau:
    Niveau : Sous-sol 1.04 m x 1.65 m
    Plancher : Céramique
  • Rangement:
    Niveau : Sous-sol 2.92 m x 3.43 m
    Plancher : Béton

Unités à revenue

  • Revenus bruts potentiels : Résidentiel
    $88 200,00
  • Revenus bruts potentiels : Date
    11-20-2025

Unités à revenue

  • Pièces : 8 Nombre de chambres : 3 Nombre salles de bain : 3 Revenu mensuel potentiel : 0,00 $
  • Pièces : 6 Nombre de chambres : 3 Nombre salles de bain : 2 Revenu mensuel potentiel : 0,00 $
  • Pièces : 2 Nombre de chambres : 1 Nombre salles de bain : 1 Revenu mensuel potentiel : 0,00 $
Style de vie
Information du quartier
Manon Delisle

Manon Delisle

Courtier Immobilier

Téléphone :  514.419.9888

Cellulaire :  514.791.5883

Jean Pierre Hénès

Jean Pierre Hénès

Courtier immobilier agréé

Téléphone :  514.792.1992

Cellulaire :  514.792.1992

logo

Royal LePage du Quartier, Agence immobilière (Franchisé indépendant et autonome)

6971 Ch. Côte-de-Liesse, #C
Montréal (St-Laurent),  QC H4T1Z3

Obtenir plus de renseignements

Obtenir plus de renseignements

Réserver votre visite