À Vendre

849 500 $

3162Z Rue Pine Tree , Saint-Lazare, QC J7T2J3

Isolé 3 Chambres à coucher 2 Salles de bain

Remarques

Maison plain-pied paisible, entièrement rénovée, comprenant un logement secondaire indépendant avec cuisine, garage et entrée séparés -- idéal pour un aménagement intergénérationnel ou pour générer un revenu locatif. À quelques minutes de l'autoroute 40 -- trouvaille rare sur un terrain de 24 100 pi².

Cette propriété clé en main a fait l'objet d'une rénovation complète en 2023--2024, réalisée dans un style contemporain : deux cuisines entièrement rénovées avec comptoirs en quartz; deux salles de bains complètes rénovées à l'étage, plus une salle de bain complète au sous-sol; nouveau plancher de bois franc au rez-de-chaussée et nouveau revêtement de vinyle étanche au sous-sol; nouvelles fenêtres et portes intérieures; plafonds et luminaires remis à neuf; peinture fraîche dans toute la maison. Les principaux systèmes ont été modernisés -- fournaise électrique et thermopompe centrale (août 2023), toiture refaite (juin 2023), nouveau puisard et drainage périphérique (French drain).

Points forts de l'aménagement :

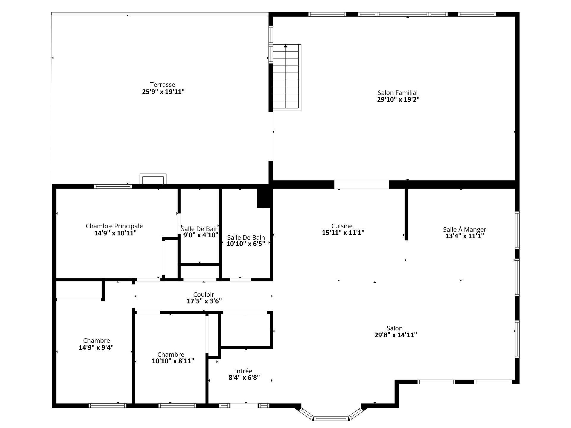
Rez-de-chaussée : concept ouvert salon / salle à manger / cuisine avec grandes fenêtres donnant sur la nature; 3 chambres, dont la chambre principale avec salle de bains attenante.

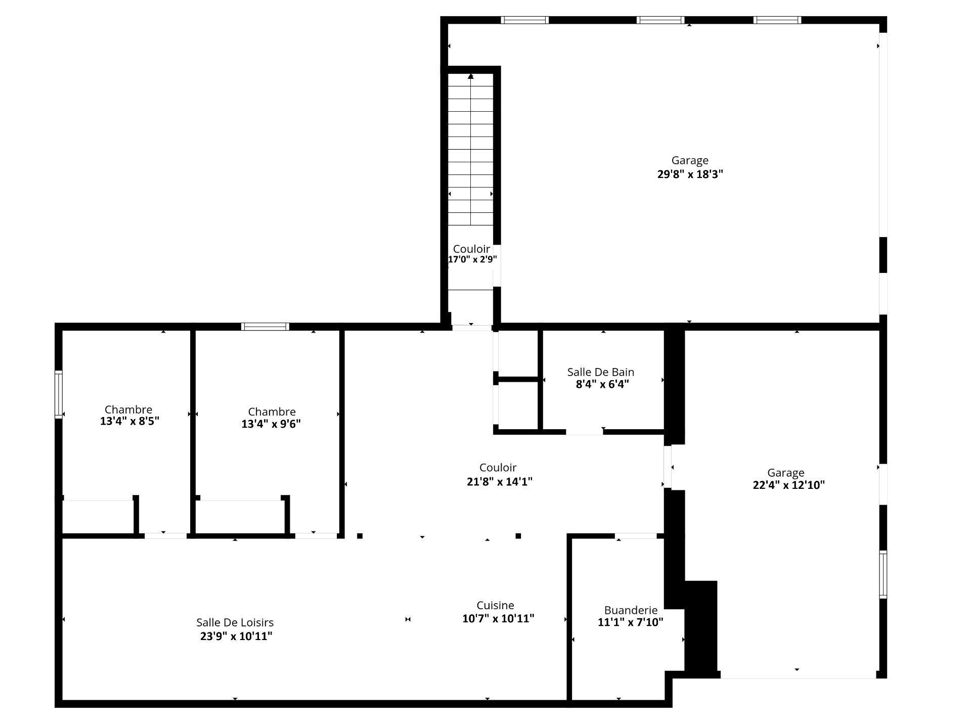
Sous-sol (entièrement rénové) : salle familiale, cuisine complète, 2 chambres, une salle de bains complète et un local utilitaire / buanderie séparé -- aménagé comme un logement intergénérationnel indépendant avec accès séparé (accès au sous-sol depuis un garage individuel), parfait comme suite familiale ou logement locatif.

Stationnement et extérieur :

Deux garages séparés (un garage double + un garage simple). Grande terrasse en bois traité et cour arrière privée bordée par la nature.


Transport et axes routiers :

> Accès rapide à l'autoroute 40, facilitant les déplacements vers Montréal et L'Ouest-de-l'Île (West Island).
> Train de banlieue (Exo -- ligne Vaudreuil/Hudson) : la gare régionale principale est Vaudreuil (Vaudreuil-Dorion), qui relie directement le secteur au centre-ville de Montréal. De bonnes options de parc-relai (park-and-ride) desservent la région.

Parcs et activités de plein air :

> Parc nature Les Forestiers-de-Saint-Lazare -- grand parc naturel offrant plus de 24 km de sentiers, activités aquatiques estivales et pistes de ski de fond/raquette en hiver -- un atout majeur pour les amateurs de nature.
> Parc Bédard -- parc central de la ville avec aires de jeux, jeux d'eau (splash pad), skatepark et installations sportives -- lieu communautaire pour les événements et les familles.
> Parc de la Vallée-Chaline / Parc des Pins -- parcs de quartier pour promenades, jeux pour enfants et espaces verts.

Sports et installations communautaires :

> Golf Saint-Lazare -- parcours et complexe de golf local (possibilité de pratique, terrain et installations sur place).
> Centre multisports André-Chagnon (Vaudreuil-Dorion) -- vaste complexe régional (piste d'athlétisme, tennis, mur d'escalade, salles d'entraînement, piscines) au service des résidents de Vaudreuil-Soulanges.

Commerces et services :

> Les Avenues Vaudreuil (Vaudreuil-Dorion)
> Costco, Walmart et plusieurs épiceries et commerces à proximité.
> Futur Hôpital de Vaudreuil-Soulanges.
> École Auclair (Commission scolaire des Trois-Lacs)

Inclusions : 

2 réfrigérateurs, 2 cuisinières, 2 hottes, 2 lave-vaisselle, une laveuse et une sécheuse, un chauffe-eau et tous les appareils et luminaires. Tous les articles sont donnés « tels quels », sans garantie de qualité.

Résumé de la propriété

  • Voisinage : Saddlebrook
  • Style de bâtiment : Isolé
  • Évaluation du terrain : 162 400,00 $
  • Évaluation de l'immeuble : 588 500,00 $
  • Évaluation totale : 750 900,00 $
  • Année d'évaluation : 2025
  • Taxes municipales : 3 862,00 $
  • Taxe scolaire : 404,00 $
  • Taxes annuelles totales : 4 266,00 $ (2025)
  • Largeur du terrain en façade : 241.6 Pieds
  • Profondeur du terrain : 100.0 Pieds
  • Dimensions du terrain : 24101.47 Pieds carrés
  • Largeur du bâtiment 13.9 Mètre
  • Profondeur du bâtiment 18.07 Mètre
  • Nbre d'espaces de stationnement : 9
  • Superficie habitable (approx): 206.9 Mètres carrés
  • Bâti en : 1987
  • Chambres : 3
  • Salle(s) de bains (complète(s)) : 2
  • Zonage : RESI

Caractéristiques du bâtiment :

  • Allée:
    Double largeur ou plus , Non pavée
  • Mode de chauffage:
    Air soufflé (pulsé)
  • Approvisionnement en eau:
    Municipalité
  • Énergie pour le chauffage:
    Électricité
  • Équipement/Services:
    Climatiseur central , Thermopompe centrale
  • Fenestration:
    Aluminium , PVC
  • Fondation:
    Béton coulé
  • Garage:
    Chauffé , Double largeur ou plus , Intégré , Simple largeur
  • Particularités du bâtiment:
    Intergénération - Sous-sol
  • Proximité:
    Autoroute , Garderie/CPE , Golf , École primaire , Ski alpin , Ski de fond , Sentier de motoneige
  • Rénovations:
    Chauffage , Couverture
  • Salle de bains:
    Salle de bains attenante à la CCP , Douche indépendante
  • Sous-sol:
    6 pieds et plus , Entrée extérieure , Totalement aménagé
  • Stationnement:
    Allée , Garage
  • Système d'égouts:
    Fosse septique

Pièces

  • Salon:
    Niveau : RDC 9.04 m x 4.55 m
    Plancher : Bois
  • Salle à dîner:
    Niveau : RDC 4.06 m x 3.38 m
    Plancher : Bois
  • Cuisine:
    Niveau : RDC 4.85 m x 3.38 m
    Plancher : Céramique
  • Salle familiale:
    Niveau : RDC 9.09 m x 5.84 m
    Plancher : Bois
  • Chambre principale:
    Niveau : RDC 4.50 m x 3.33 m
    Plancher : Bois
    Avec salle de bains attenante
  • Autre:
    Niveau : RDC 2.74 m x 1.47 m
    Plancher : Céramique
  • Chambre:
    Niveau : RDC 4.50 m x 2.84 m
    Plancher : Bois
  • Chambre:
    Niveau : RDC 3.30 m x 2.72 m
    Plancher : Bois
  • Salle de bains:
    Niveau : RDC 3.30 m x 1.96 m
    Plancher : Céramique
  • Salle de lavage:
    Niveau : RDC 1.96 m x 1.35 m
    Plancher : Céramique
  • Cuisine:
    Niveau : SS1 3.23 m x 3.33 m
    Plancher : Céramique
  • Salle familiale:
    Niveau : SS1 7.24 m x 3.33 m
    Plancher : Autre
  • Chambre:
    Niveau : SS1 4.06 m x 2.90 m
    Plancher : Autre
  • Chambre:
    Niveau : SS1 4.06 m x 2.57 m
    Plancher : Autre
  • Salle de bains:
    Niveau : SS1 2.54 m x 1.93 m
    Plancher : Céramique
  • Autre:
    Niveau : SS1 3.38 m x 2.39 m
    Plancher : Béton
Style de vie
Information du quartier
Manon Delisle

Manon Delisle

Courtier Immobilier

Téléphone :  514.419.9888

Cellulaire :  514.791.5883

Jean Pierre Hénès

Jean Pierre Hénès

Courtier immobilier agréé

Téléphone :  514.792.1992

Cellulaire :  514.792.1992

logo

Royal LePage du Quartier, Agence immobilière (Franchisé indépendant et autonome)

6971 Ch. Côte-de-Liesse, #C
Montréal (St-Laurent),  QC H4T1Z3

Obtenir plus de renseignements

Obtenir plus de renseignements

Réserver votre visite